AMÉNAGEMENT DES COMBLES DE LA SALLE DES FÊTES POUR LES SERVICES PÉRISCOLAIRES
Publié le vendredi 06 février 2026 - La Chapelle-Rambaud
La commune dispose d’une école publique avec classe unique, accueillant des élèves de la Grande Section jusqu’au CM2. Les effectifs de ces dernières années fluctuent entre 15 et 20 élèves. Afin d'accueillir les écoliers le plus largement possible, la municipalité est dotée de services périscolaires, qui assurent la cantine à midi et la garderie le matin et le soir, et deux animatrices y sont affectées. Ils fonctionnent 36 semaines par an, soit 144 jours, et la majorité des enfants prennent leur déjeuner à la cantine, tandis qu’une petite partie d’entre eux fréquente la garderie le matin et le soir. En outre, l’espace garderie est également utilisé à midi après le repas, et avant le retour à l’école.
Actuellement, ces services périscolaires sont situés dans la salle des fêtes, qui est donc partagée avec les événements festifs du week-end. À ce titre, elle est louée en moyenne un week-end sur deux. Le personnel doit donc régulièrement ranger la totalité du matériel (tables, chaises, four, mobilier de garderie, jeux...) pour libérer l'espace de la salle et du bar. Ce travail s’avère manifestement fastidieux et chronophage. Par conséquent, l’aménagement d’un local dédié pour les services périscolaires s'est montré très pertinent pour la commune, puisqu’il permet de distinguer l’utilisation de la salle polyvalente de celle des services périscolaires. Le déménagement du mobilier deviendrait inutile, ce qui faciliterait grandement l’organisation et la séparation des utilisations de cette salle.
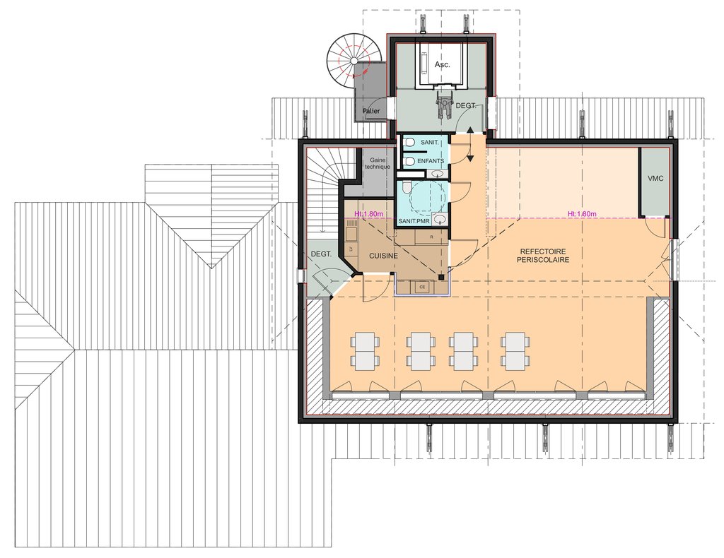
Le conseil municipal a lancé une consultation fin 2024 pour l'aider à concevoir un espace dédié à ces services. Et, suite à un appel d'offres en juin 2025, le bureau d'ingénierie STER, situé à Saint-Pierre, a remporté le marché de maitrise d'œuvre pour accompagner la commune dans la réalisation de cet espace. Après études, il a été décidé d'aménager les combles de la salle des fêtes et de les affecter à cet usage. Des travaux vont ainsi être menés pour rendre ces combles utilisables et accessibles. La charpente sera relevée côté champs pour augmenter la hauteur sous plafond, et une cage d'ascenseur sera créée côté rue pour se conformer aux normes d'accès et de sécurité d'un établissement accueillant du public. Le local périscolaire comprendra un espace cantine et un espace jeu séparé, une cuisine aux normes ainsi que des sanitaires adaptés aux enfants.
Le permis de construire a été accepté le 9 janvier 2025 et le projet est actuellement en phase d'appel d'offres pour les travaux. Ces derniers s'étaleront du mois d'avril au mois de novembre de cette année. La salle sera alors généralement inaccessible pendant cette période.
Le montant total de l'opération est estimé à 760'000€ HT et sera financé à hauteur de 80% par des subventions et 20% par la commune. Ainsi, le Département de la Haute-Savoie finance à hauteur de 242'820€ par le biais du CDAS et du Plan Ruralité, la Région finance à hauteur de 148'560€ au titre du Contrat Région, et un montant de 216'676€ a été demandé à l'État au titre de la DETR.
La commune tient à remercier chaleureusement l'ensemble des financeurs qui permettront la réalisation de ce projet fort utile. Elle remercie également les bénévoles venus prêter main-forte au personnel communal pour vider les combles de ses vieilleries.







